Panoramica
- Aggiornato il:
- Maggio 14, 2025
- 4 Camere da letto
- 4 Bagni
- 143 m2
Descrizione
Casa al mare – Villetta bifamiliare in vendita a Marina di Pietrasanta
Ubicata nella zona di Tonfano a circa 200 metri dal mare e vicina a tutti i servizi, la villettasi presenta in buone condizioni di manutenzione.
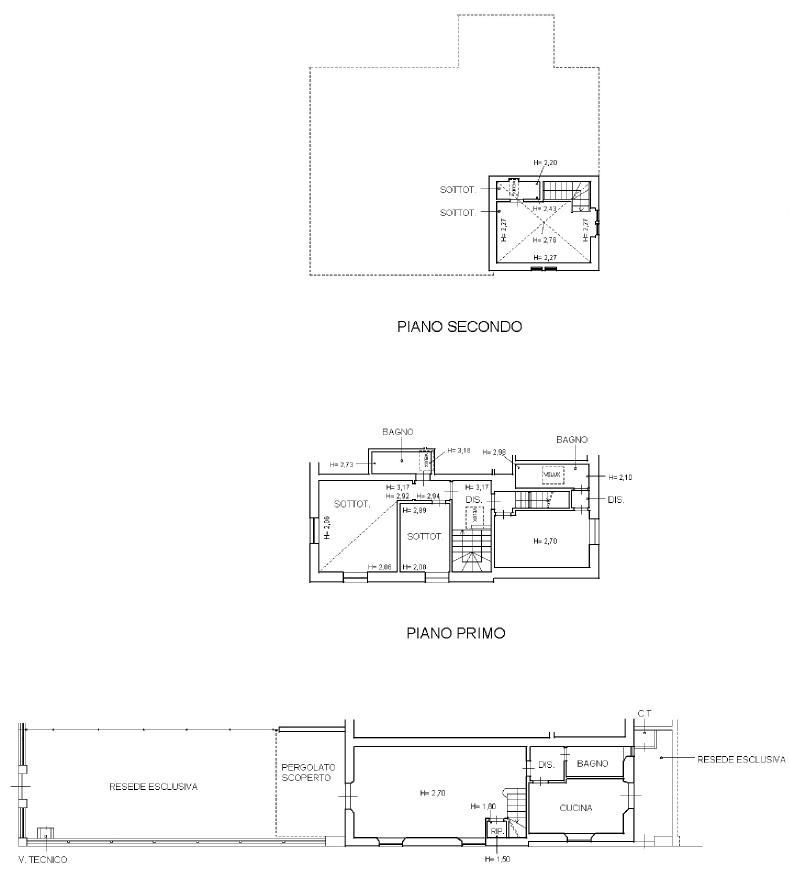
Distribuita su due piani fuori terra ed uno mansardato, si compone di : cucina con portafinestra sul piccolo resede retrostante, un grande soggiorno pranzo ed un bagno a doccia al piano terreno.
Al piano superiore si trovano due camere matrimoniali di cui una con bagno, una cameretta ed un bagno a doccia, mentre in mansarda si trova una camera matrimoniale con bagno a doccia.
Giardino e posto auto.
Classe energetica G 215,86 KWh/mq anno
A+
A
B
C
D
E
F
215,86 kWh/m²a | La tua classe energetica è G
G
H
Indirizzo: Marina di Pietrasanta
Città: Marina di Pietrasanta
Località: Tonfano
Zona: Mare
Paese: Italia
Apri su Google Maps Id. proprietà : 36483
Prezzo: € 890.000
Mq: 143 m2
Giardino Mq: 84 m2
Stanze: 6
Camere da letto: 4
Bagni: 4
Indice energetico: 215,86 kWh/m²a
Classe energetica: G
Custom ID: 2076
Tipo struttura: Not Available
Numero Piani: Not Available
Altre caratteristiche
Aria condizionata
Cancello elettrico
Giardino
Impianto di irrigazione
Posto auto
Pozzo artesiano
€ 3,450.71
al mese- Capitale e interessi
- Imposta patrimoniale
- Commissione HOA
€ 3,450.71
Schedule a tour
Gio
16
Apr
Ven
17
Apr
Sab
18
Apr
Dom
19
Apr
Lun
20
Apr
Mar
21
Apr
Mer
22
Apr
Gio
23
Apr
Ven
24
Apr
Sab
25
Apr








